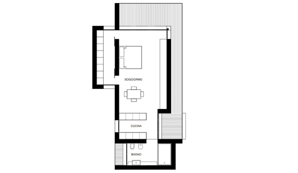
Progettazione e concorsi
Studio di Architettura Monga Sagl ha sempre nuove sfide all’orizzonte e progetti in fase di sviluppo, pronti a prendere forma. Dalle ristrutturazioni alle nuove costruzioni, dalla progettazione alla direzione dei lavori in cantiere: lavoriamo su idee innovative che uniscono estetica, funzionalità e sostenibilità curando ogni fase a 360 gradi.
Ogni progetto del nostro studio di Cadro nasce da un’analisi approfondita e da un confronto diretto con il cliente, al fine di trasformare esigenze e visioni in soluzioni concrete. Segui i nostri aggiornamenti o contattaci per dare vita al tuo progetto.
























